Servicios Inmobiliarios profesionales



  • $2,263,286 MXN En Venta
  • $2,263,286 MXN En Venta
  • 0 Baños
  • 0 Medios baños
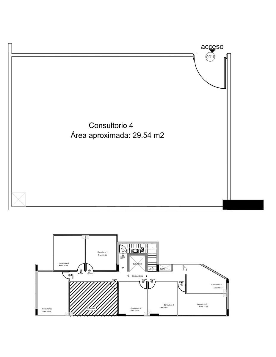
  • 29.54 m² de construcción
  • 29.54 m² de terreno
  • 0 Estacionamientos
Ver Tour Virtual

Detalles

  • Tipo: Local comercial
  • ID: EB-RZ2470
  • Clave interna: LGJ-236
  • Antigüedad: 2026
  • Baños: 0
  • Medios baños: 0
  • Piso: 3
  • Mantenimiento: 0

Descripción

[LGJ-236]
Consultorios en venta Entrega 2027
A pasos de Parque Vía Vallejo
Servicios:
-Sistema de seguridad
-Cctv y control de accesos
-Recepción con área de registro y espera
-App con sistema de registro de citas
-Valet parking
-Escaleras de emergencia
-Servicios compartidos
- Se entrega con ductos instalados para su propia necesidad

Amenidades:
-Espacios privados
-Cafetería panorámica
-Estacionamiento exclusivo
-Lobby y área de espera
-Elevador
-Toilette en áreas comunes por nivel

Nuestro desarrollo consta de 8 niveles con 56 espacios de consulta, desde los 16 y hasta los 29 m2, cuya distribución permite que puedan conectarse 2 o más unidades e integrarse en espacios más amplios, conforme a los requerimientos de cada disciplina.
Las ventajas de su ubicación son:
*Cerca de Hospital La Raza
*Cerca de Centro Hospitalario Magdalena de las Salinas
*Cerca de Centro de Rehabilitación del Imss (Av. Politécnico)
*Cerca de Hospital Privado Ángeles de Lindavista.

Si eres profesional de la salud, te contactamos con nuestros aliados especialistas en
créditos financieros.

*Contamos con créditos especializados para profesionales de la salud, para financiar 70% del valor total*

Aparta con $25,000.00
Enganche 15% a la firma del contrato (se toma en cuenta el apartado)
Oferta y personaliza tu forma de pago.
My Home inmobiliaria

My Home inmobiliaria

EB-RZ2470
Imprimir propiedad

Ubicación

Defensores de La República, Gustavo A. Madero, Ciudad de México

Propiedades destacadas