Servicios Inmobiliarios profesionales



Terreno Residencial en venta en Las Cañadas

Las Cañadas, Zapopan, Jalisco

  • $5,887,000 MXN En Venta
  • $5,887,000 MXN En Venta
  • 860 m² de terreno
Ver Tour Virtual

Detalles

  • Tipo: Terreno
  • ID: EB-TR2671
  • Clave interna: TZJ-534
  • Antigüedad: 2024

Descripción

[TZJ-534]
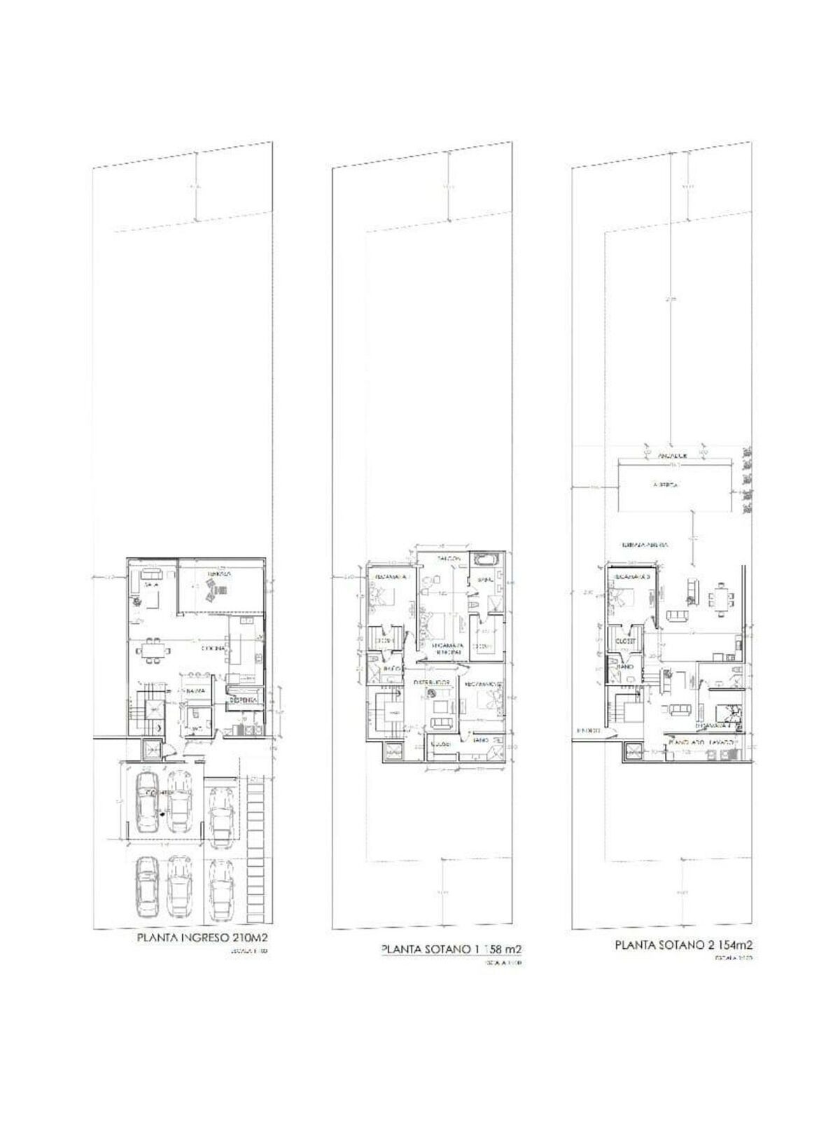
Terreno en venta con un proyecto moderno que va incluido en la venta dentro de Las Cañadas, El terreno es descendente y tiene una ubicación privilegiada en el fraccionamiento, con vistas panorámicas. Acceso rápido a Periférico Norte y a solo 15 minutos de Plaza Andares, así como de centros comerciales como Walmart, Soriana y Superama a 8 minutos. El fraccionamiento ofrece plaza comercial con supermercados, restaurantes, salón de belleza, barbería, podólogo, veterinaria, entre otros servicios. Además, cuenta con club de golf y agua proveniente de pozo. ¡Una excelente oportunidad para construir la casa de tus sueños en una de las zonas más exclusivas de Zapopan!
My Home inmobiliaria

My Home inmobiliaria

EB-TR2671
Imprimir propiedad

Ubicación

Las Cañadas, Zapopan, Jalisco

Propiedades destacadas